Биокамин SteelHeat ONE-H 800 стекло + стемалит
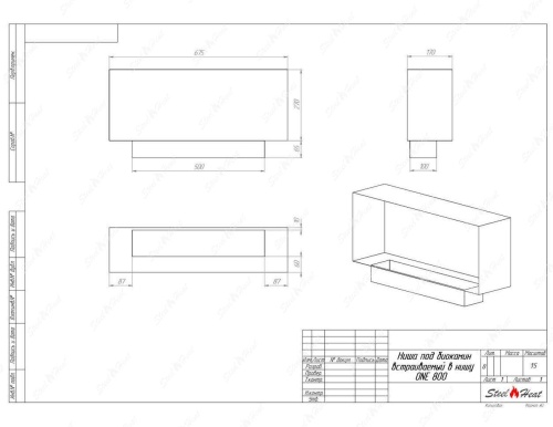
Встраиваемый Биокамин SteelHeat ONE-H 800 предназначен для встраивания в глухие ниши из гипсокартона, кирпича, пеноблоков, бетона.
Биокамин SteelHeat ONE-H 800 прекрасно подойдет под любой стиль интерьера. Живой огонь наделит ваш интерьер особым шармом и роскошью. Биокамин SteelHeat ONE-H 800 подходит для установки в помещения любых размеров и является абсолютно безопасным. Биокамин SteelHeat ONE-H 800 выполняет не только декоративную роль, но и обогревающую, благодаря чему вы сможете прекрасно провести время возле него в холодные зимние вечера.
Особенности конструкции
- цельносварной корпус без стыков и соединений, изготовленный из прочной листовой стали толщиной 2,5 мм;
- топливный бак изготовлен из шлифованной нержавеющей стали с толщиной верхней крышки 4 мм, обеспечивающей его большой эксплуатационный ресурс;
- все элементы корпуса биокамина покрыты огнеупорной порошковой краской, которая обеспечивает простую чистку изделия от пыли;
- специализированная перфорированная сетка и заслонка топливного бака делают ручное управление биокамином безопасным и очень удобным;
- горизонтальные шлифованные накладки стального цвета, благодаря которым биокамин обретает индивидуальность и более стильный внешний вид.
Технические особенности
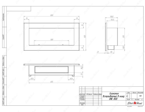
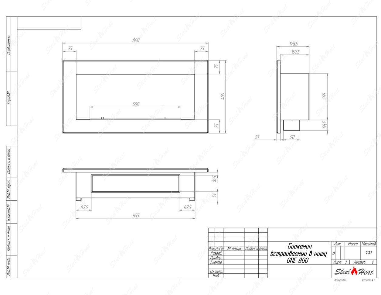
- размер топливного бака – 500 мм;
- линия огня – 40 см;
- время горения – ~4 часа;
- объем – 1,77 л.
- Защитное стекло – термоустойчивое закаленное стекло со специальной рамкой высотой 80 мм и толщиной 4 мм. Данный элемент выполняет защитную и декоративную роль;
- Стемалит - закаленное стекло, выдерживающее температуру до 700 градусов. Благодаря данному элементу увеличивается объем пламени за счет отражающего эффекта.
Характеристики
|
Страна
|
Россия |
|
Назначение
|
для квартиры, для дома, для офиса |
|
Материал
|
сталь;нержавеющая сталь;стекло |
|
Форма
|
плоский, узкий |
|
Вес, кг
|
12.3 |
|
Гарантия, лет
|
10 |
|
Цвет
|
Черный |
|
Код товара
|
B2699 |
|
Длина, мм
|
800 |
|
Высота (мм)
|
400 |
|
ДxВxГ, мм
|
800х400х179 |
|
Тип
|
вставка, со стеклом, со стемалитом |
|
Тип управления
|
Механический |
|
Тип топлива
|
Биотопливо |
|
Стиль камина
|
Современный |
|
Тип установки
|
встраиваемый, встраиваемый в мебель, встраиваемый в нишу, встроенный в стену, портальный |
|
Стекло
|
Есть |
|
Глубина, мм
|
179 |
|
Линия огня, мм
|
400 |
|
Время горения, ч
|
4 |
|
Материал топливного блока
|
Нержавеющая сталь |
|
Толщина метала топливного блока, мм
|
2 |
|
Минимальная площадь помещения, м2
|
14 |
|
Расход топлива, л/ч
|
0.42 |
Часто задаваемые вопросы
Биокамин – это устройство состоящее из очага (топливного блока) и корпуса, окрашенного термостойкой порошковой краской. В эксплуатации биокамин очень прост, для использования необходимо залить в топку биотопливо, поджечь и можно наслаждаться живым и безопасным пламенем. В случае необходимости перекрывается доступ кислорода, с помощью задвижки и огонь гаснет.
Очаг – это емкость куда заливается жидкое топливо. Емкость внутри заполняется керамическим материалом, который впитывает биотопливо, и в случае опрокидывания камина топливо не разливается. За счет этого конструкция стала полностью пожаробезопасной. Очаг встраивается в корпус из стали, который окрашивается специальной термостойкой краской, или же в заранее подготовленную нишу, изготовленную из негорючих материалов.
Прежде всего необходимо определиться куда будет установлен биокамин. Если нет возможности подготовить нишу для встраивания камина, то отлично подойдут напольные или настенные варианты. Они отличаются простотой установки и надёжностью конструкции. Более простые модели, например настольные оснащены закалёнными защитными стёклами и могут легко перемещаться по помещению. Также существуют модели максимально напоминающие каминную топку дровяного камина. Такое устройство состоит из деревянного или каменного портала, в который встраивается корпус и очаг биокамина.
Встраиваемые варианты разделяются на такие как классические, устанавливаемые в подготовленное отверстие в стене или нише. Угловые, которые монтируются в угловую часть стены. Торцевые – открытые с трёх сторон. И сквозные, вид живого огня которых доступен в разных комнатах.
Простыми в установке являются настенные биокамины, для монтажа которых стоит лишь выбрать подходящее место на стене и повесить устройство на дюбеля.
Самые бюджетные варианты не требующие монтажа - это настольные устройства, установить которые возможно на любую ровную поверхность. Например на рабочем месте, либо украсить праздничный стол или полку.
Наш интернет-магазин предлагает несколько вариантов доставки:
- курьерская (СДЭК, ПЭК, Деловые линии, DPD, Стрела и т.д.);
- самовывоз из магазина;
- постаматы;
- почта России.
Вы можете заказать доставку товара с помощью курьера, который прибудет по указанному адресу в будние дни и субботу с 9.00 до 19.00. Курьерская служба, после поступления товара на склад, свяжется с вами и предложит выбрать удобное время доставки. Уточнит адрес.
Вы вскрываете упаковку при курьере, осматриваете на целостность и соответствие указанной комплектации. Время осмотра ограничено 15 минутами. Если товар повреждён или не соответствует описанию, Вы можете отказаться от получения и Вам будут возвращены денежные средства.
Доставка бесплатна при заказе от 25000 рублей.
Самовывоз из магазина (Предварительно уточняйте наличие у менеджера)*Действует ли в вашем городе курьерская служба, уточняйте у менеджера магазина.
Вы можете забрать товар в одном из магазинов, сотрудничающих с нами. Список торговых точек, которые принимают заказы от нашей компании появится у вас в корзине. Когда заказ поступит в ваш город, вам придёт уведомление. Вы просто идёте в этот магазин, обращаетесь к сотруднику в кассовой зоне и называете номер заказа. Забрать покупку может ваш друг или родственник, который знает номер и имя, на кого он оформлен.
Постамат – это терминал с автоматизированной системой для хранения заказанных товаров. Удобство в том, что человек может забрать заказ в любое удобное время.
- в момент оформления заказа на сайте, вы выбираете удобный для себя постамат, если такая система работает в вашем городе;
- на ваш телефон или e-mail придет уникальный код, это значит, что товар доставлен в постамат;
- вы приходите к постамату, вводите полученный код и следует инструкциям автомата;
- оплачиваете заказ в терминале постамата;
- забираете товар.
Если в вашем городе не действует курьерская служба и постаматы, то вы можете заказать доставку через почту России. Сразу по прибытии товара, на ваш адрес придет извещение о посылке.
Перед оплатой вы можете оценить состояние коробки (не вскрывая): вес, целостность. Если вам кажется, что заказ не соответствует параметрам или коробка повреждена, попросите сотрудника почты составить акт о вскрытии. Вскрывать коробку самостоятельно вы можете только после того, как оплатили заказ.
Один заказ может содержать не больше 10 позиций и его стоимость не должна превышать 100 тысяч рублей.
Почему ESC?
Тарасов Роман
Выбор товара для домашнего комфорта и уюта довольно хлопотное занятие. Какой бы товар это не был, нужно довольно много времени провести за экраном, чтобы изучить характеристики, отличия и учесть все нюансы. Вам не нужно тратить своё время. Достаточно определиться с категорией оборудования и выбрать необходимые характеристики, я буду рад помочь в выборе подходящем для Вас. Обладаю огромным опытом в области товаров профильного направления.










